Kjøpt
Villa PerEli
Villa m/gjestehus* i Vasanello (VT), Lazio
Landsbyvilla med basseng, eget gjestehus og romslig hage, i gangavstand fra gamlebyen i Vasanello. Kun 1 time fra Roma - klar til å flytte inn.
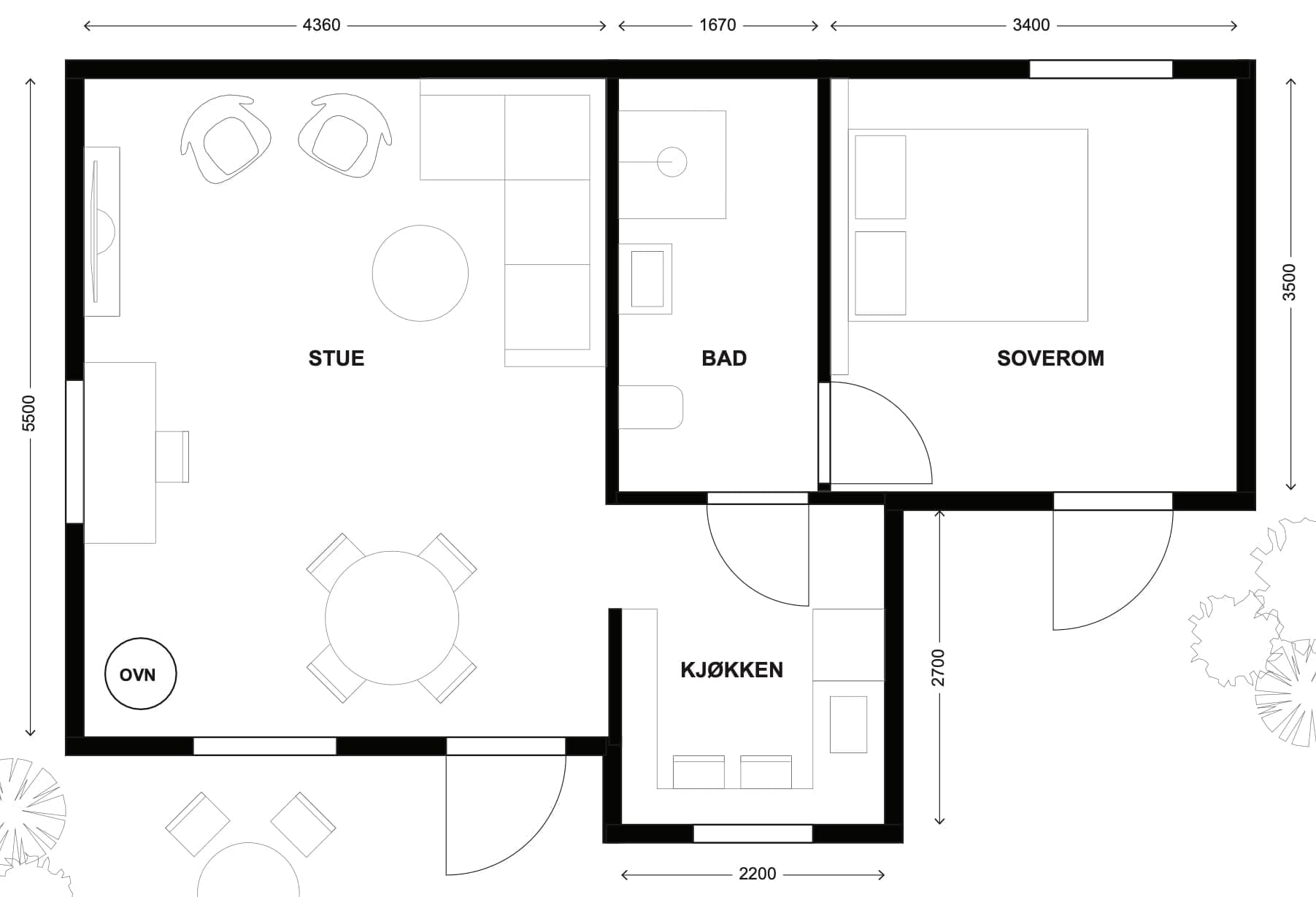
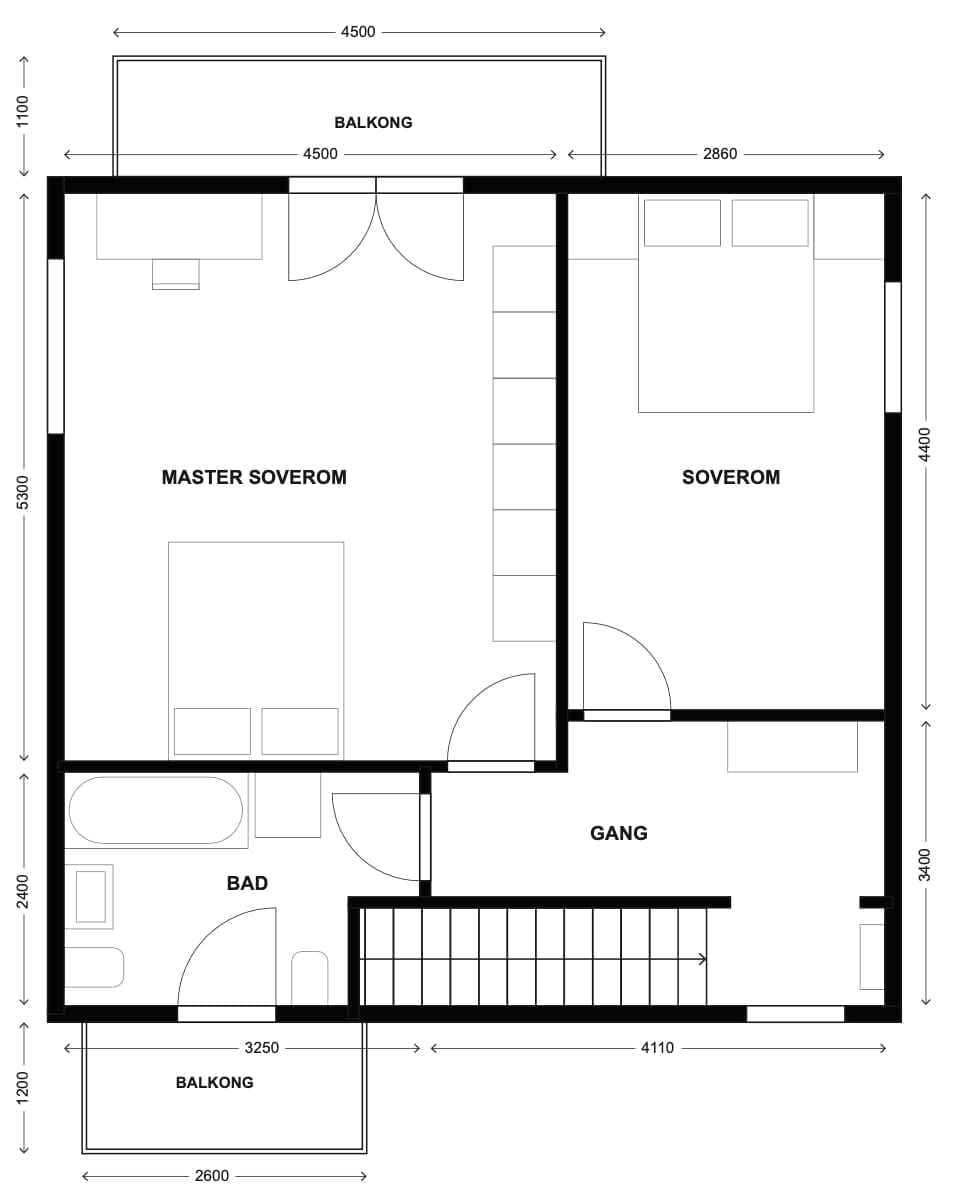
111+49 m2
2+1 soverom
1+1 bad
Villa PerEli er godt utstyrt med alt av møbler og tilbehør - om du vil, kan du flytte rett inn! Villaen ligger praktfullt til i utkanten av landsbyen Vasanello. Hovedhuset ligger omtrent midt på eiendommen, med fine hageområder foran og bak. Huset er solid bygget, og det er kun brukt klassiske italienske materialer. Alt fungerer, men kjøkken og bad kan oppgraderes om ønskelig. Det er doble vinduer med skodder og integrert, nedtrekkbar myggnetting på de aller fleste vinduer.
Prisen på eiendommen er redusert! Årsaken er en byråkratisk floke der gjestehuset ikke er formelt godkjent som bolighus. NB: Dette påvirker knapt nok bruksverdien. Det er ingen krav til endringer hverken i selve bygget eller bruksmåten, utover utleie (se under). Salgsverdien er imidlertid justert i henhold til dette.
Følg oss i bloggen vår:
Italialiv
Tips og tanker om livet, å bo og det å finne bolig i Italia. Og noen opplevelser på veien.
En visningstur i Italia handler ikke bare om å “se hus”, det handler om å forstå livsstilen, området og den lokale følelsen. En visningstur kan være smart.
Kartnålas plassering kan være svært omtrentlig.
Mer om eiendommen
Basseng
Balkong
Terrasse
Hage
Eget uteområde
Bod/lagerrom
Klimaanlegg
Oppvarming med gass
Gjestehus/ anneks
Solrikt
Skyggefulle område
Parkering
Nylig renovert
Barnevennlig
Rolig område
Privat
Utsikt
I landsby
Landsby i gangavstand
Nær gamleby
Levende lokalmiljø hele året
NB I tillegg til oppgitt pris må man regne +/- 6-12 % – til offentlige skatter, gebyrer, provisjon mm. På nye boliger tilkommer også 4-10 % mva. Spør oss om detaljer for hver bolig.
Alle mål er omtrentlige. Det tas forbehold om feil. Kontakt oss for mer informasjon.

Avvik kan forekomme, og tegningen er ikke målbar. BRA kan ikke beregnes ved benytte tallene pà plantegningen." class="pp-album-img" />
Avvik kan forekomme, og tegningen er ikke målbar. BRA kan ikke beregnes ved benytte tallene pà plantegningen." class="pp-album-img" />
Avvik kan forekomme, og tegningen er ikke målbar. BRA kan ikke beregnes ved benytte tallene pà plantegningen." class="pp-album-img" />